In Auteuil Sud, a stone's throw from the Exelmans metro station, this exceptional 205.29 sqm duplex (203.68 sqm Carrez law) occupies the 4th and 5th floors with elevator of an elegant 1930 Art Deco building. Renovated by an architect in 2019, it also benefits from a double maid's bedroom converted into a 16 sqm studio, accessible by elevator on the 8th floor, and a 16 sqm double cellar.
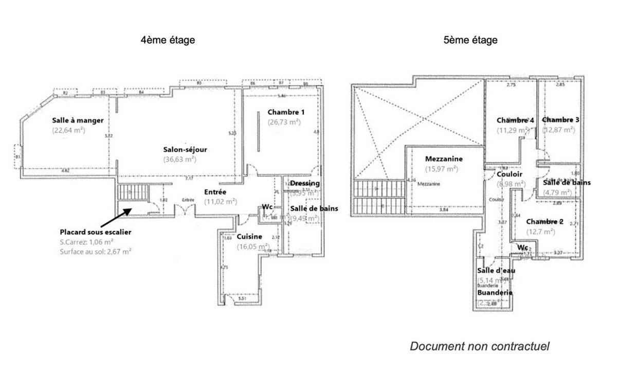
Upon entering, the cathedral-style living room impresses with its 5.90 m high ceiling and two large full-height windows, bathing the space in natural light and highlighting the spectacular volumes.
The adjoining dining room, separated by a Mondrian-style glass partition, benefits from a double exposure.
Each French window opens onto a small balcony, providing additional breathing space and undeniable charm.
The separate, fully equipped kitchen combines comfort and practicality.
On the same level, a spacious master suite includes a custom-made dressing room and a marble bathroom. A separate toilet completes this floor.
The staircase leads to the 5th floor, where a mezzanine overlooking the living room leads to three bedrooms, two bathrooms, several dressing rooms, a laundry room, and a separate toilet, creating an ideal sleeping area for a family.
The luxury condominium is secure and maintained with a caretaker.
This bright and atypical duplex, with rare volumes and high-end renovation, represents a unique opportunity in Paris. An ideal address for lovers of exceptional properties combining elegance, comfort, and singularity.
Exelmans metro (line 9)
+33 7 65 88 07 14
Condominiums of 17 units (No proceedings in progress). Annual expenses : 14033 euros.
Save this Property to your favourites or Send an Enquiry to receive more images. To receive alerts of similar properties or to arrange a visit, simply register here.







