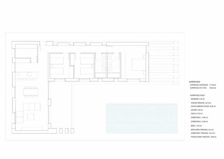
NEW BUILD VILLA IN PINOSO New build luxury villa in Pinoso, province of Alicante. Luxury 3 bedroom, 2 bathroom villa with an open plan kitchen to the living and dining area, a private pool and a covered terrace. The villa has been designed with large windows to allow light and the open rooms offer innovative extra space. Excellent quality of construction with contemporary amenities, as well as the impressive location, an exemplary infrastructure with stunning and panoramic views of the mountains and valleys filled with almond and olive trees and vineyards producing the local wine makes this area a modern oasis of well-being, and the surrounding nature is splendidly in abundance. You have the choice of all the tiles in the kitchen, bathroom and floors and even the style of your kitchen for you to make it and customize the design in-house just for you, the architect of the construction company will work with you and advise you if necessary on any changes you want to make. You can increase the size of this VILLA if needed, we can give you an estimate. Here you can live in complete freedom and have all the everyday amenities just a 10 minute drive away, you can smell the aroma of wild herbs and relax in your own oasis of a Mediterranean garden. New properties of unusual design and excellent quality are being built in LAS COLINAS, located in a natural park with fabulous views of the mountains and almond orchards, but within walking distance of the local hamlet and only a 6 minute drive to Pinoso, near the village of Ubeda located on the southern Costa Blanca.
Our friendly multi-bilingual team in Alicante are fully licensed in compliance with Spanish laws and are ready to welcome you. From arranging finance, helping with bank accounts, rentals, interior designers, furniture packs or concierge, we are here to help with a service tailored to your needs.
Their level of service is superb; from meeting you at the airport, to helping with hotels in the area, they go the extra mile, at no extra cost.
All properties come with a 10 year guarantee and can be sold furnished if required. There are floor plans and often videos available, private tours can also be arranged on request.
Contact us to book a free consultation or to arrange visits.







